La maison «Tarzan» est un projet de rénovation et d’extension de maison en mission permis de construire.
Les clients, qui ont récemment acheté une maison de ville à Nantes,
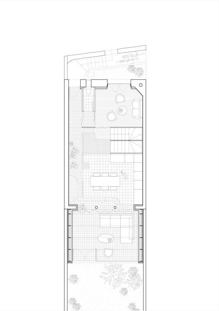
souhaitaient des espaces libres et capables, ainsi qu’un volume bioclimatique faisant le lien entre rez-de-chaussée et jardin.
Le projet comprend la rénovation énergétique globale de la maison et quelques interventions plus lourdes comme la réfection de l’escalier qui mène aux deux étages ainsi que l’extension vitrée faisant office de salon et jardin d’hiver.
Le plan est réorganisé pour libérer le rez-de-chaussée et offrir une séquence de vie tramée de la rue au jardin.
Le premier étage est repensé pour l’accès aux chambres, et les combles sont aménagées en atelier de céramique.
La couleur verte est le fil rouge du projet, elle se retrouve sur toutes les menuiseries et serrureries de la maison pour tisser un lien entre les éléments existants conservés tels les carrelages anciens et les poutres.









